Mixed use building gets mixed reviews in Bedford Village
- Jan 16
- 5 min read


Crowd split on development next to Bedford Playhouse
By JEFF MORRIS
A crowd of speakers at a Planning Board public hearing Jan. 12 on the proposal for a mixed-use development next door to the Bedford Playhouse appeared evenly split.
About half of the nearly 20 people who spoke, either in person or via Zoom, fully supported the proposal, and the others expressed either strong opposition or had significant concerns.
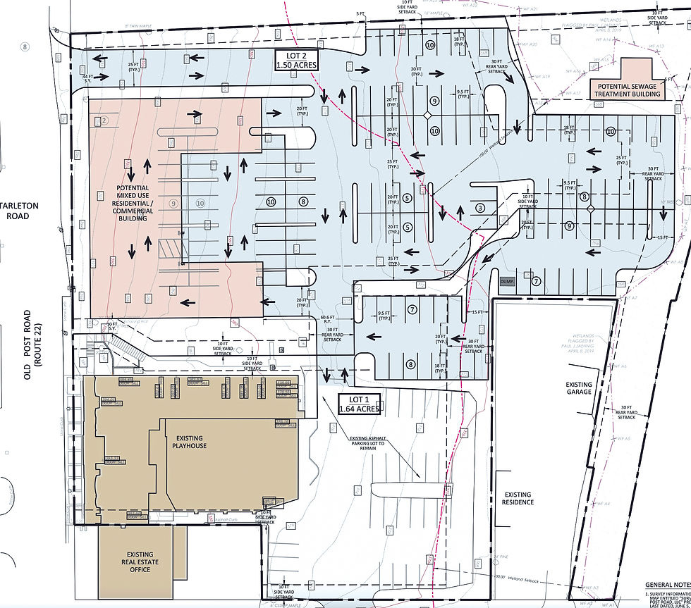
In October, the board had declared itself lead agency for the project located at 633-647 Old Post Road. It took on that role at the request of the Town Board, as part of a petition by the applicants to adjust zoning for the vacant 3.14-acre parcel, which, according to Attorney P. Daniel Hollis, had incurred discrepancies in zoning maps over the years, resulting in parts not being included in the “NB,” or Neighborhood Business, district.
The goal of the application was to have the entire parcel uniformly zoned in order to proceed with a multi-use development plan.
The board took on the task of conducting simultaneous State Environmental Quality Review Act environmental reviews, one for the rezoning, and one for the concept plan.
No SEQRA review occurred at this meeting, and the plans presented, while including a somewhat greater level of detail than what had been provided in the past, were clearly still not fully formed and awaiting input from both the public and the board.
As presented, the concept plan is for 27 rental dwelling units, with the rest of the building for commercial use. The applicants made the point that it follows what is called for in the town’s comprehensive plan. With the entire property some 20 feet below the grade level of Old Post Road, the lower level of the building will not be visible, and will be devoted to parking.
Architect Seelan Pather of South Norwalk-based Beinfield Architecture, gave a presentation which included aerial photos of the area as it currently is, and rough floor plans of the proposed building and surroundings, but did not contain any renderings of the building’s exterior. “We don’t have building elevations to show tonight,” he said. “We started working on those, but want to take the necessary time to get those concepts properly developed.”
Pather said some of the principal design considerations were matching the height of the Playhouse, so the new building has a contextual scale; continuing the small retail feel of the first floor and curating the pedestrian experience across the front of the building and from the parking lot to the Post Road; and responding to the architectural vernacular — the building materials and architectural details that exist along the Post Road.
However, such design details, or the lack of them, did not seem to be among the primary concerns of those who spoke once the public hearing was opened.
Chair Deirdre Courtney-Batson opened the hearing with a cautionary preamble.
“I do hope that we can all agree that the majority of people in this room have one thing in common, and that is that we all care deeply about this town and what happens in this town,” she said. “We may disagree about what’s best for the town, but we all want what’s best for the town, and I hope we can keep that in mind with the discussion. We need to hear the pros and cons of this development; we don’t really need to hear the pros and cons of each other.”
Though most adhered to that framing, one early speaker, a resident of The Farms, revealed that she and other Bedford Village residents were in the process of retaining legal counsel, and requested that the board pause any decisions or advancement of the application pending that review.
“There is a perception in the community, unfortunately, that this application may have been approved outside public process,” she said. “I sincerely hope that the perception is unfounded. I respectfully request confirmation for the record that no determinations, agreements, understandings or commitments of any kind regarding this application have been made prior to the close of public record. These requests are intended to ensure lawful and transparent process and to evaluate this non-essential proposal against the real limits of existing infrastructure before irreversible impacts are imposed.”
Courtney-Batson responded immediately, denying that the board had already made any decisions.
“We are human beings, and we have leanings,” she said. “I don’t know what my fellow board members’ leanings are. We will look at it seriously.”
Courtney-Batson paused and went on.
“I have to admit that every time there is this kind of implication, that the people who volunteer their time in this town, as much as we do, are somehow trying to pull something over on people, I’m inclined to want to ask: What do you think we’d get out of it that we would want to do that? It’s not worth it to us. Our own souls are worth more to us than any project in the town.”
She added that she knows people have been talking about each other and about the town government.
“It is an unfortunate aspect of American governance today,” Courtney-Batson said. “I’m offended by it, so I can’t pretend I’m not.”
A later comment from David Menken, currently a town justice, also responded to the allegations. He noted he had been chair of the zoning board for eight years prior to being town justice, and was accused of misconduct when people didn’t like the decisions he was making.
“I never had any prejudice, and I don’t believe that this board does either,” he said, “so before people make that kind of accusation, they have to be very careful with the facts, and have facts.”
Menken was one of several speakers who talked about his desire to downsize within the town, but whose options were limited by a lack of the type of housing this project would provide. Others echoed that point of view, saying they support the proposal because it would add a restaurant and other retail, and bring more vitality and additional parking to Bedford Village’s downtown.
Most of the criticisms were focused on traffic, and how difficult it already is to navigate Routes 22 and 172 and exit driveways during large parts of the day. There were also concerns raised about the wetlands buffer on the property, which already contains a parking lot; the development plan claims to both expand the parking and remediate whatever incursion into the buffer already exists.
A more basic charge leveled against the proposal was that it would change the entire character of Bedford Village, which was said to be in danger of “turning into New Canaan or Darien.”
One belief mentioned was that affordable housing requires access to public transportation, raising the specter of Bee Line buses coming through Bedford Village. That fear was immediately proven to be unfounded.
The public hearing was adjourned, to be resumed Feb. 9, at which time a rendering of the building is expected to be available.
Jeff Morris has been a reporter for The Recorder since its inception, and previously wrote for The Record-Review, The Lewisboro Ledger, and business periodicals, and even edited jokes for Reader’s Digest.


.png)




![CA-Recorder-Mobile-CR-2025[54].jpg](https://static.wixstatic.com/media/09587f_b989949ec9bc46d8b6ea89ecc2418a8a~mv2.jpg/v1/fill/w_370,h_150,al_c,q_80,enc_avif,quality_auto/CA-Recorder-Mobile-CR-2025%5B54%5D.jpg)




